R 085

الدور الأرضي


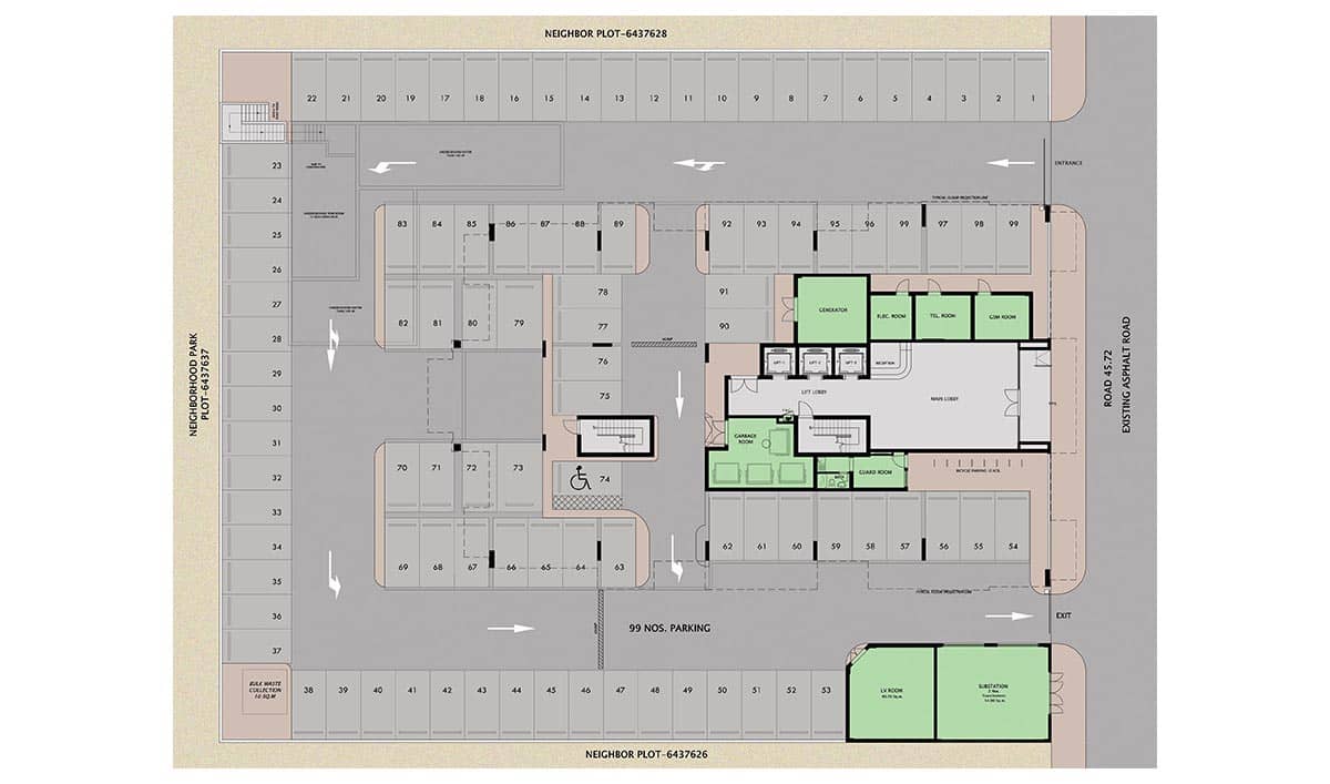
Q-Line is designed to provide its residents with excellent finishes throughout . R 085 rises up to 9 floors consisting of superior varying sizes of apartments from studios to 1& 2 bedroom apartments.


Scroll to Top